Bolig

Vi ser alltid arkitekturen i sammenheng med konteksten den er en del av. I hvert enkelt oppdrag ser vi etter muligheter for å skape funksjonelle hjem som fungerer godt i hverdagen og passer inn i omgivelsene.

Typiske faser for boligprosjekter

Prosjekter

Muserud

  • Mulighetsstude og skisseprosjekt for utvidelse av husmannsplass i Asker

  • Ny tomansbolig

  • Restaurering og transformasjon av eksisterende låve

  • Status: pågående

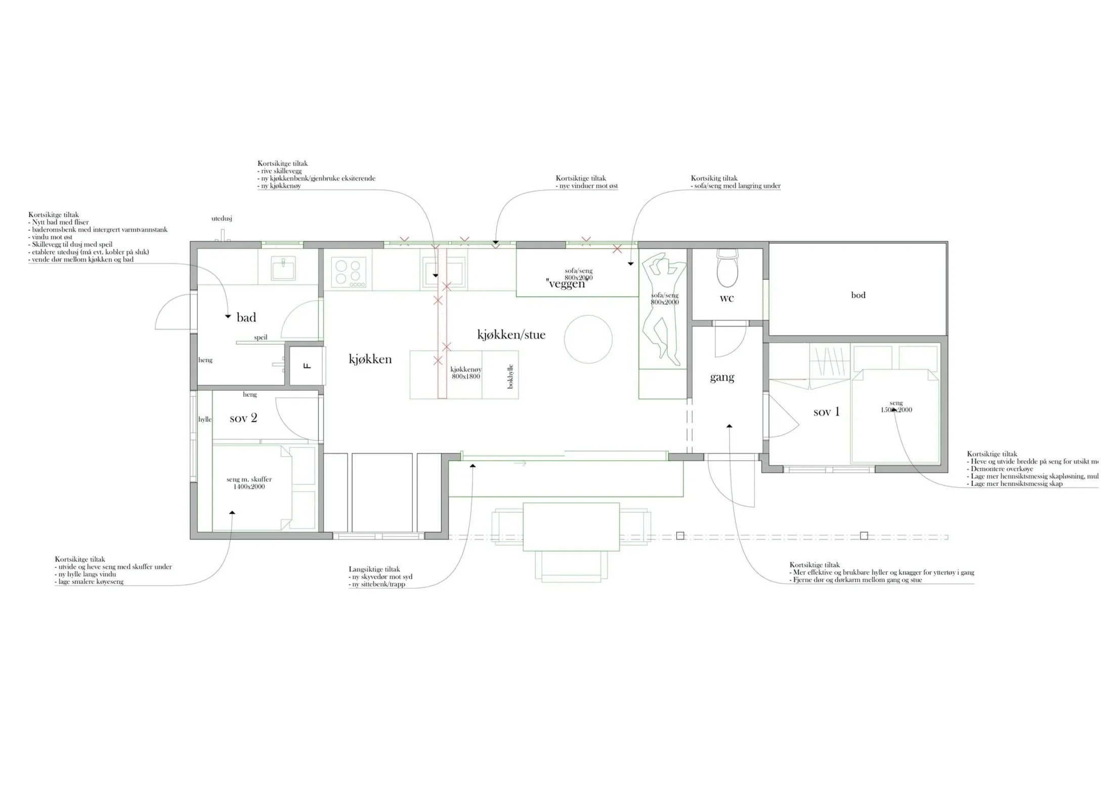
Sarpsborggata

  • Ombygging av leilighet på Sagne i Oslo

  • Tegning og bygging av plassbygde møbler

  • Flytting og gjenbruk av kjøkken

Nybakken

  • Ombygging av hytte på Tjøme

  • Plassbygde løsninger som kjøkken, senger og møbler